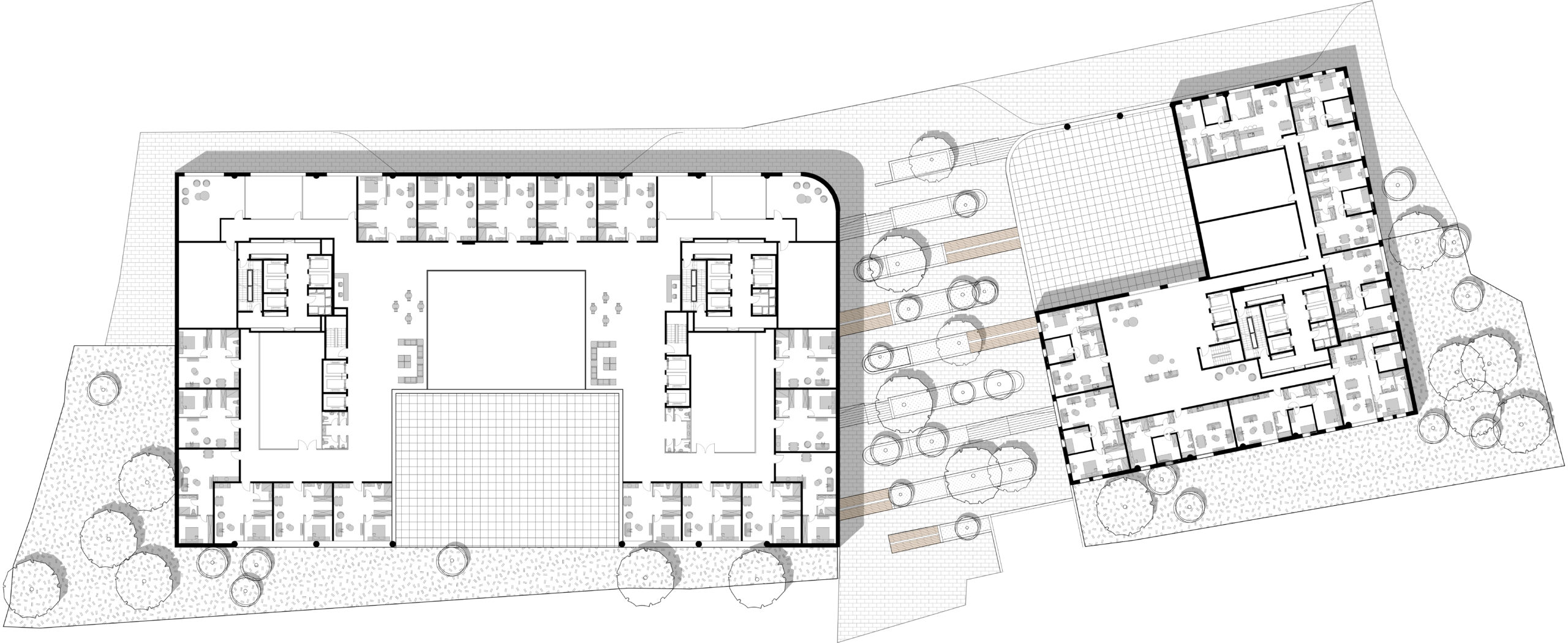
הצעה מס' 2 לבינוי משמעותי בשער הכניסה לירושלים, המשלבת מגורים, מסחר, תעסוקה, מבנים ומוסדות ציבור, דיור מוגן ועוד
מיקום
שימוש
שטח מגרש
שטח בנוי
סטטוס